一、 概述
除塵器問世以來,在國內外不斷得以廣泛的應用和改進。其中在凈化含塵氣體的性能及設備結構上,已取得了較大的進展。實踐證明,目前所大量使用的旋風、布袋等除塵器,在除塵效率、檢測工作量及運行可靠性等方面都存在著不同程度的問題。
我公司生產的 LT 系列濾筒式除塵器,是在吸收國外八十年代同類產品先進技術基礎上,對除塵效率、結構性能及可靠性等方面進行了綜合改進而成,與國內同類產品相比,具有以下顯著優點:
1. 設備箱體部分利用含塵氣體的自重與下行氣流型,來達到其本身的自凈和過濾。這樣就可降低運行費用,提高過濾效率。
2. 空氣處理組合采用了新穎獨特的濾筒裝置。其特點是過濾面積大、濾塵效果好(可吸附 0.3~0.5μm 級塵粒)、更換清理方便、快捷、安全、耐用。
3. 設備結構緊湊、布局合理、通用性好,充分體現了除塵技術的先進水平。
在用戶選用時,可根據其具體工況來方便地進行不同的處理組合,從而保證達到用戶滿意的工作效果。
4. 設備采用先進的脈沖反吹清灰裝置,清灰效果明顯,并可根據其本身運行阻力的大小,來控制脈沖噴吹時間、周期等,從而節省能源、降低消耗。
二、 工作原理及結構
工作原理及結構示意圖
含塵氣體由除塵器下部進氣口進入除塵器內部的過程中,其中較大顆粒(直 徑 100μm),首先被沉降;較小顆粒(直徑 0.1~50μm)在空氣處理室被吸附在濾筒表面。穿過濾筒的凈化空氣經排氣室排出。當設備運行阻力達到一定時,脈沖
控制儀觸發電磁閥開啟,壓縮空氣(P=0.5~0.6Mpa)經噴吹管吹射濾筒內部,使塵粒在瞬間高壓氣流作用下脫落,從而降低過濾阻力來完成除塵清灰過程。
通過對濾筒表面灰塵周期性清理,使設備運行阻力相對穩定,是保證除塵系統正常工作的重要環節。沉降及清理的灰塵集聚于灰斗內,由手動排灰閥排出。
三、 控制系統安裝試車及調整
1、將電磁閥從左至右編號,并按順序接在控制儀插頭各輸出線上。
2、制儀按指定位置就位后,接電源,任意旋轉調節旋扭位置,均應有脈沖信號輸出。控制儀數字顯示順序與電磁閥動作順序一致,然后用絕緣膠布包好各接頭。
3、控制儀開動后,調節脈沖寬窄及脈沖周期的長短,顯示準確;數碼顯示程序數字無紊亂現象;電磁閥開關聲響清晰無顫動現象為合適。
四、 除塵器安裝、維護和檢修
1. 設備安裝前要檢查除塵器所有附件是否齊全、主機有無損傷之處。如有問題待處理后再進行安裝。
2. 控制儀安裝,當除塵器安裝在室外時控制儀需要防雨箱或罩。也可將控制儀安裝在室內。控制儀與除塵器距離按控制儀說明書要求確定。
3. 除塵器設專人管理。維修工要熟知除塵器及儀表原理,掌握調整與維修方法,并建立運行記錄。
4. 破漏濾筒更換要及時。發現除塵器排出口冒粉塵,表明已有濾筒破漏,查破漏方法,停車后,打開檢修門察看,上部清潔室有積塵,表明濾筒破漏,
4 需進行更換。
5. 脈沖閥膜片為易損件,發現破損應及時更換。
五、 主要技術經濟指標
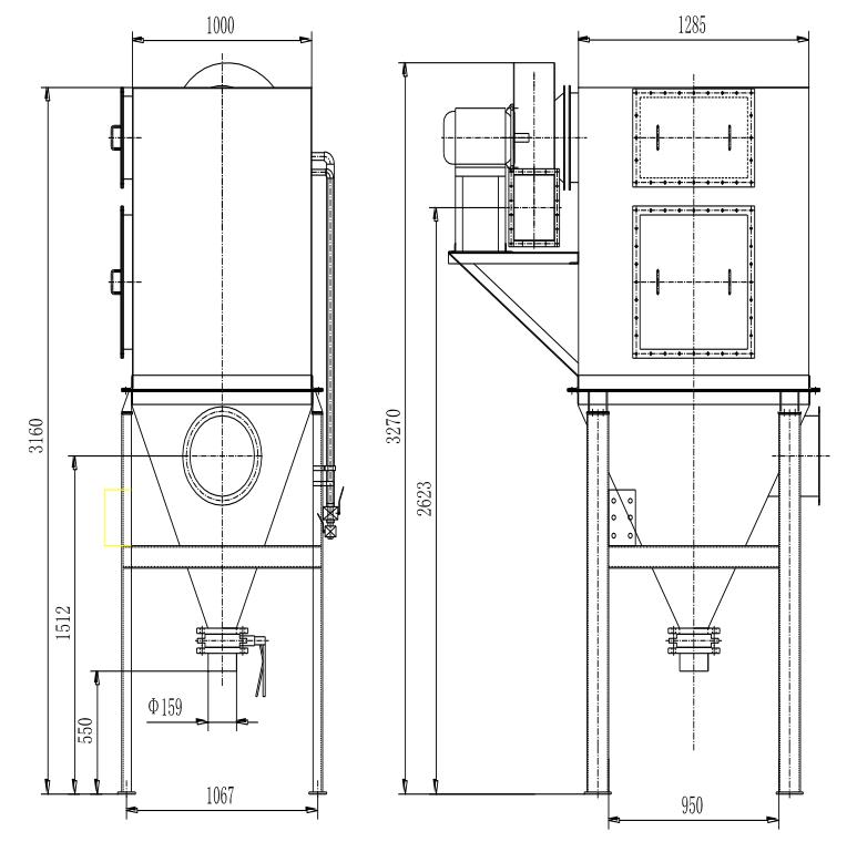
六、 LT6-3除塵器外形尺寸








